REQUEST A TOUR If you would like to see this home without being there in person, select the "Virtual Tour" option and your agent will contact you to discuss available opportunities.
In-PersonVirtual Tour

Listed by Ann Trussell • HomeBased Realty
$ 39,000
Est. payment /mo
Active
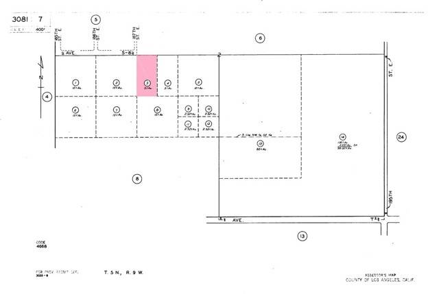
0 E 187th Street East Avenue S-8 Palmdale, CA 93591
216,893 SqFt
UPDATED:
Key Details
Property Type Vacant Land
Sub Type Unimproved Land
Listing Status Active
Purchase Type For Sale
Square Footage 216,893 sqft
Price per Sqft $0
MLS Listing ID CRSR25186559
HOA Y/N No
Lot Size 4.979 Acres
Property Sub-Type Unimproved Land
Source Datashare California Regional
Property Description
High Desert Parcel - 5 acres, flat, buildable. Investment, Ranch, Custom Home - Lots of Open Space!
Location
State CA
County Los Angeles
Interior
Fireplace No
Exterior
View Mountain(s), Other
Building
Lot Description Horses Possible, Level
Water None

© 2025 BEAR, CCAR, bridgeMLS. This information is deemed reliable but not verified or guaranteed. This information is being provided by the Bay East MLS or Contra Costa MLS or bridgeMLS. The listings presented here may or may not be listed by the Broker/Agent operating this website.

Get More Information
Quick Search
- Homes for Sale in Fremont
- Homes for Sale in Hayward
- Homes for Sale in San Leandro
- Homes for Sale in Pleasanton
- Homes for Sale in San Ramon
- Homes for Sale in Dublin
- Homes for Sale in Alameda
- Homes for Sale in Castro Valley
- Homes for Sale in Union City
- Homes for Sale in Newark
- Homes for Sale in San Lorenzo

